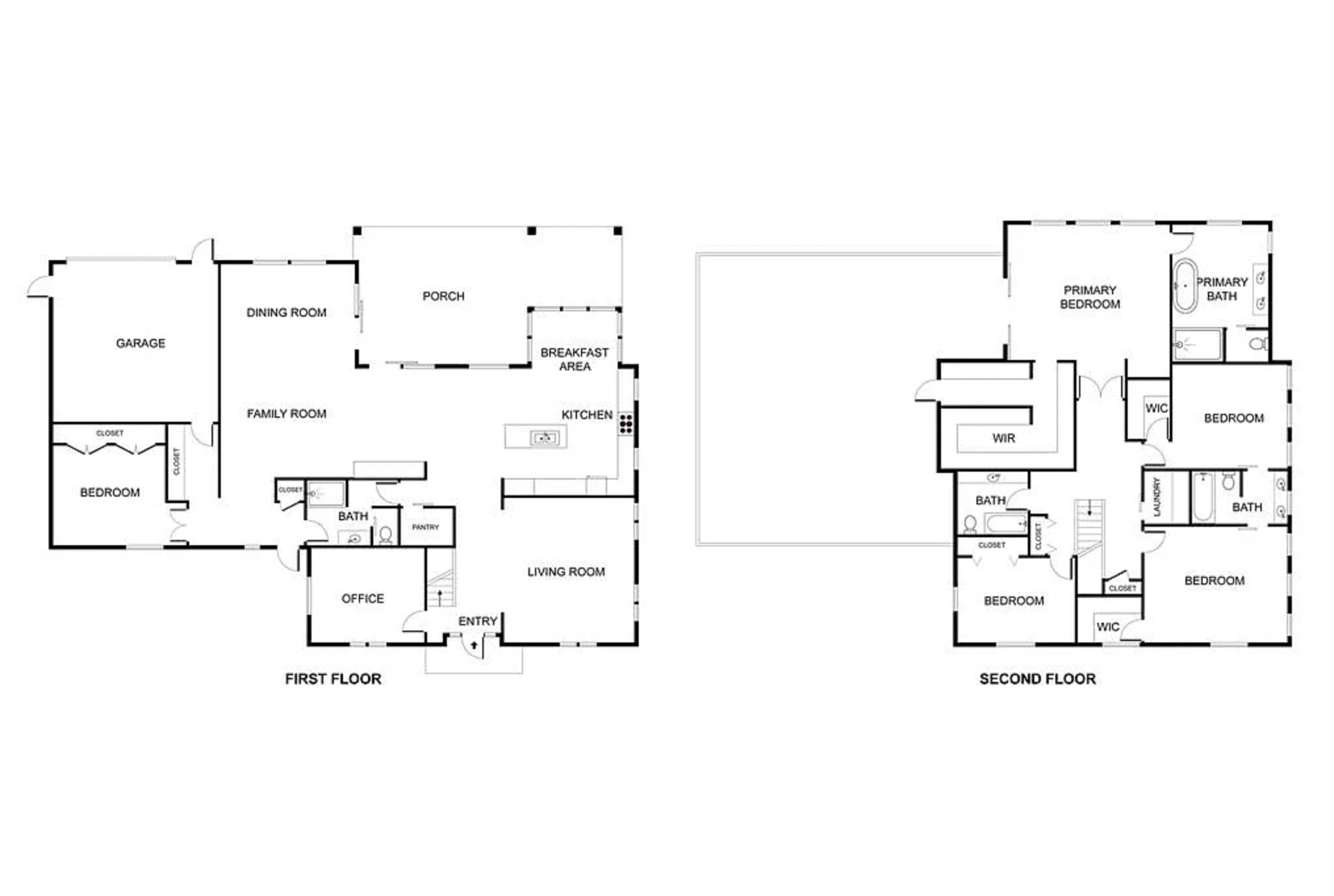
Welcome to 9 Tahoe Lane, a magnificent retreat in the exclusive enclave of Sea Ranch Lakes, where coastal living meets timeless sophistication. This exquisite residence was completely remodeled in 2021 & presents a rare opportunity to own a home in one of Florida’s most coveted neighborhoods. This spacious residence offers ample room for comfortable living & entertaining. Every detail has been carefully considered. This meticulously crafted home has 6 bedrooms, Norwegian wood floors, built-in BBQ grill, pool, a/c garage w/gym & generous sized back yard. Home is being sold fully furnished. Sea Ranch Lakes residents enjoy a wealth of amenities, including private Beach Club, 24/7 police patrol, playground & access to private beach. Close to shopping, restaurants & private schools.
Features List
Amenities
- Dishwasher
- Internet
- Park


